Appartement – T3 – CUGNAUX – 890

4C13D1B0D32F487BA337534BAB894BA2 ID de la propriété
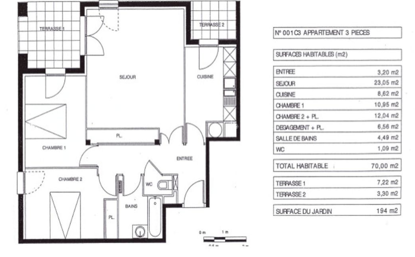
68 m2 Taille

Description

CUGNAUX – A LOUER T3 de 68m² avec un garage, une place de parking et une terrasse.
Loyer: 770€ HC + 120€ de charges.
Composé d’une entrée, d’un séjour, d’une cuisine, de deux chambres, d’une salle de bain et d’un WC.
Proche transports et commerces.
Pour visite contacter Loc Express numéro 05 54 54 73 44
Frais de dossier 240 euros.

Adresse

  • Adresse 15 Rue de l'Amour Trompé Quartier Hautpoul
  • City/Town
  • Postal code/ZIP 31270
Open on Google Maps

Overview

  • ID de la propriété 4C13D1B0D32F487BA337534BAB894BA2
  • Prix €890
  • Type de propriété
  • Property status
  • Chambres 2
  • Taille 68 m2
  • Étiquette
  • État général Très bon état
  • Référence Logement PRO-31-2025-5837
  • Catégorie Appartement
  • Caution 1
  • Entrée 1
  • Séjour 1
  • Placard 1
  • Wc 1
  • Cuisine séparée
  • Ext Privatifs Jardin
  • construction 2005
  • nbÉtages 1
  • Terrasse Balcon Terrasse
  • Chauffage individuel
  • Bilanges A
  • Énergie électricité
  • Garage 1
  • Parking 1
  • Climatisation 1
  • SDB Salle d'eau